National Police Camp: Warehouse & Office Complex

Location: Djibouti City, Republic of Djibouti

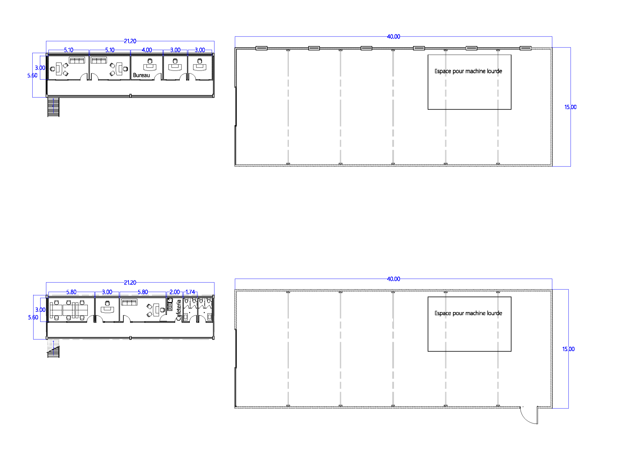
This project comprises the design and construction of a warehouse and office complex situated within the National Police Camp in Djibouti City. The development consists of two primary structures: a two-storey administrative office building and a large-span steel warehouse facility, together forming a functional and secure operational compound.

The office block features a clean, modern facade with a rendered finish, housing staff facilities, sanitary blocks (WC), and administrative spaces across two levels. The warehouse structure is a pre-engineered steel building clad in bold blue profiled metal sheeting, designed to accommodate storage, logistics, or equipment needs of the national police force.

The complex is set within a paved hardstanding area, with defined circulation routes and parking provisions, ensuring efficient movement of vehicles and personnel within the secured camp perimeter.

Previous
Previous

Villa U